Richland House & Land Package
Rickrealestate
2020.04.16 00:31
7,036
0
-
- Attachments : 0479f7268d396bb740c02fbfa0d257e.jpg (291.7K) - Download
-
- Attachments : c0f580a84e336a9778d159ba741f368.jpg (167.7K) - Download
- - Short Address : http://sunbrisbane.com/brsb/bbs/?t=2lvh
- Price530,000
- LocationRichland
- AddressLittleton Rd
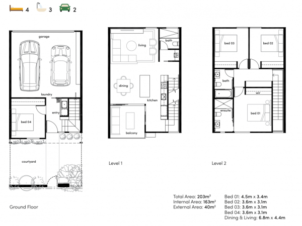
- Bed4 Bath2.5 Car Park2
Contents
Richland house & land package only 530k~540k full turn key!!!
If you are first home buyer or looking for investment property.
This is the one you should take a look.
3min drive to Woolworths Richland
4min drive to Gateway M5 or Ipswich motorway M7
6min drive to Inala Plaza
8min drive to Mt Ommaney shopping centre
and only 15min drive to Indooroopilly shopping centre!!
Private inspection available~
Please call Rick 0430 389 825







Comment 0